Vivienda KRD
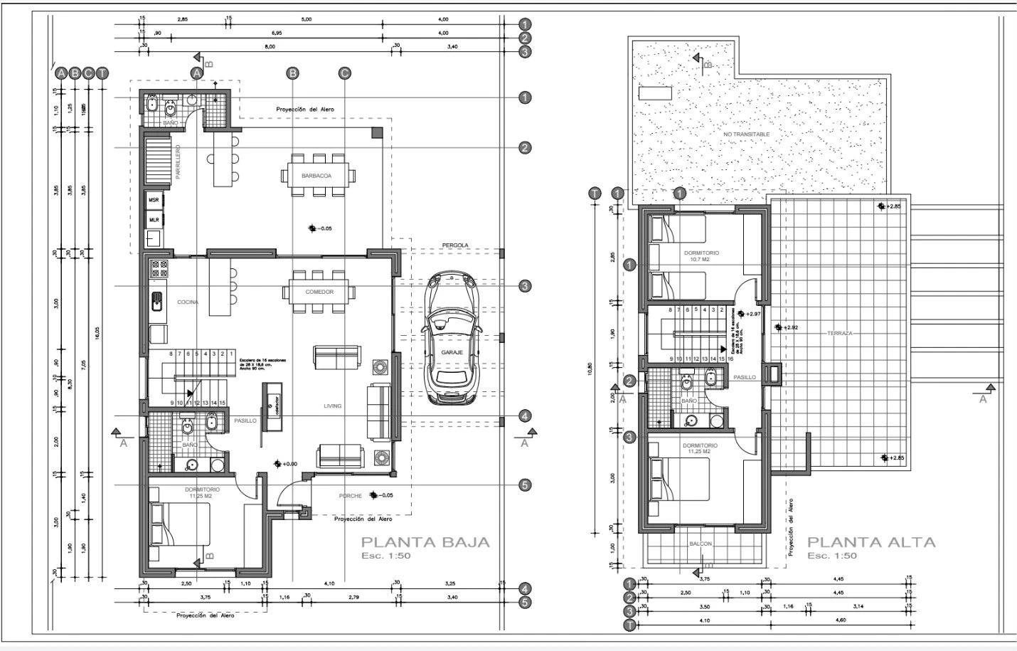
Vivienda de 2 niveles.
Planta alta: 2 dorm y 1 baño , terraza y balcones con vista al mar.
Planta baja: 1 dormitorio, 1 baño, living y cocina comedor.
Barbacoa con toilette.
Playa grande - Piriápolis.
Calefactor a leña y losa radiante eléctrica.
Sistema tradicional de doble pared con aislación térmica










